Помещение №672

4-й Предпортовый проезд, 5Л Посмотреть на карте

672
672
672
672
672
672
672
672
672 , планировка
Помещение №672
Пищевое производство, Промышленное производство, Склад
Сумма в месяц
772 800 ₽/мес
Арендная ставка
1 150 ₽/м2/мес
Площадь
672 м2
Этаж
3
Включено
Отопление
НДС
Вода
Да
Отапливаемое
Да
Электричество (кВт)
600
Канализация
Да
Лифт (грузо-подъемность в тоннах)
5
Кол-во ворот
2
Полы
Антипылевой бетон
Бытовые помещения
Да
С/У
Да
Раздевалки
Да
Нагрузка на пол (тонн/м2)
2
Интернет/Телефония
Да
В наличии
Вода
Да
Отапливаемое
Да
Электричество (кВт)
600
Канализация
Да
Лифт (грузо-подъемность в тоннах)
5
Кол-во ворот
2
Полы
Антипылевой бетон
Бытовые помещения
Да
С/У
Да
Раздевалки
Да
Нагрузка на пол (тонн/м2)
2
Интернет/Телефония
Да
В наличии

Нужна помощь в подборе?

Оставьте заявку и мы свяжемся с вами

Нажимая кнопку, вы соглашаетесь с  Политикой конфиденциальности

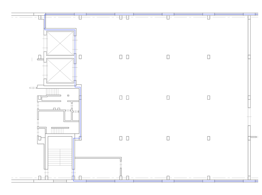
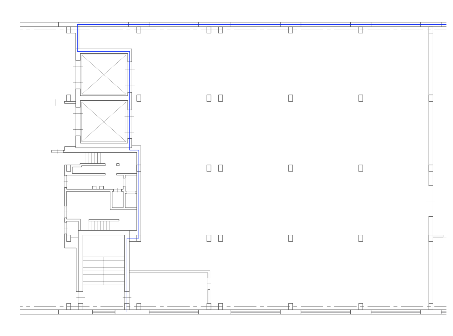
Планировка
Планировка 672
Описание помещения
Предлагается помещение под пищевое или "чистое" производство на 3 этаже.
2 парковочных места в ПОДАРОК!

Основные характеристики и преимущества:
- В стоимость включены НДС и отопление  
- Высота потолка — 4,5 метра  
- Лифт на 5 тонн (2 шт.)
- Бытовые помещения, 2 сан.узла, офисный блок
- 600 кВт
- Пол — ровный, обеспыленный бетонный пол  
- Отопление, вода, канализация, пожарная сигнализация, интернет, телефония — всё подключено  
- Тёплая погрузочная зона на первом этаже
- Асфальтированная территория для маневрирования и парковки транспортных средств  
- Бесплатный въезд на охраняемую территорию  
- Парковка и площадки для большегрузного транспорта  
- На территории расположены кофе-автомат и бистро — комфорт для сотрудников и гостей!
- Видеонаблюдение и круглосуточная охрана обеспечивают вашу безопасность  
- Возможность аренды офисных помещений в нашем бизнес-центре  
- Современные системы: автоматическое распознавание номеров, мобильное приложение для пропусков для автомобилей

Локация и транспорт:
- Удобная транспортная доступность — всего 10 минут до метро Московская
- 200 м до КАД

Идеально подходит под:
- алкогольный склад  
- швейное производство  
- пищевое производство  
- фармацевтическое производство  
- складские площади

Звоните прямо сейчас!  
Обсудим условия и забронируем помещение для вашего бизнеса.



Возможно, вы искали: фулфилмент, распределительный центр, логистический, кросс-докинг, интернет-магазин (хранение и комплектация заказов), оптовый склад, склад маркетплейса, швейное производство, текстильный цех, фасовка и упаковка продукции, пищевое производство, кондитерский цех, производство полуфабрикатов, сборка и комплектация изделий, контрактное производство, мелкосерийное производство, сборочный цех, производство мебели, столярный цех, металлообработка лёгкая, производство пластиковых изделий, печатное производство, типография, рекламно-производственный цех, склад стройматериалов, склад запчастей, сервисный центр, ремонт и обслуживание оборудования, dark store, склад для HoReCa, склад фармацевтической продукции , архив, мастерская, техническая база, пункт выдачи заказов с зоной хранения
Смотреть все
Как добраться