Помещение №1004

посёлок Тельмана, 60Е Посмотреть на карте

1004
1004
1004
1004
1004
1004
1004
1004
1004, планировка
Помещение №1004
Промышленное производство, Склад
Сумма в месяц
853 400 ₽/мес
Арендная ставка
850 ₽/м2/мес
Площадь
1004 м2
Этаж
1
Включено
Отопление
НДС
Вода
Да
Отапливаемое
Да
Электричество (кВт)
200
Канализация
Да
Кол-во ворот
1
Кран балка
Да
Полы
Бетон
Бытовые помещения
Да
С/У
Да
Раздевалки
Да
Нагрузка на пол (тонн/м2)
3
Интернет/Телефония
Да
В наличии
Вода
Да
Отапливаемое
Да
Электричество (кВт)
200
Канализация
Да
Кол-во ворот
1
Кран балка
Да
Полы
Бетон
Бытовые помещения
Да
С/У
Да
Раздевалки
Да
Нагрузка на пол (тонн/м2)
3
Интернет/Телефония
Да
В наличии

Нужна помощь в подборе?

Оставьте заявку и мы свяжемся с вами

Нажимая кнопку, вы соглашаетесь с  Политикой конфиденциальности

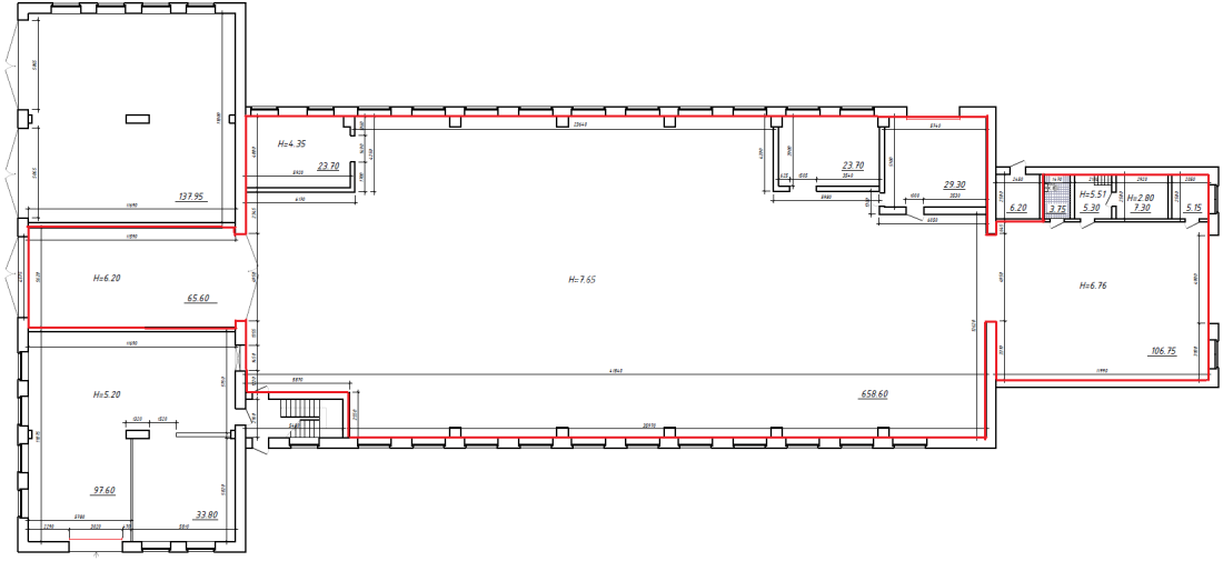
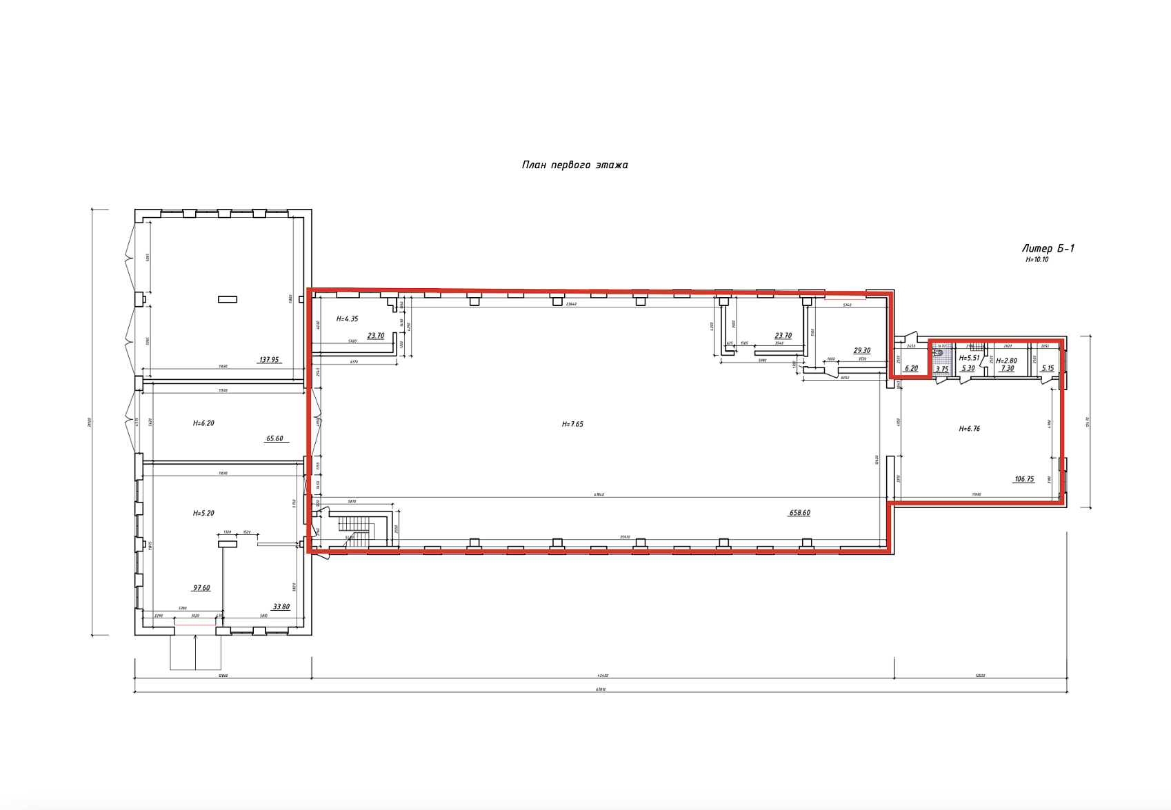
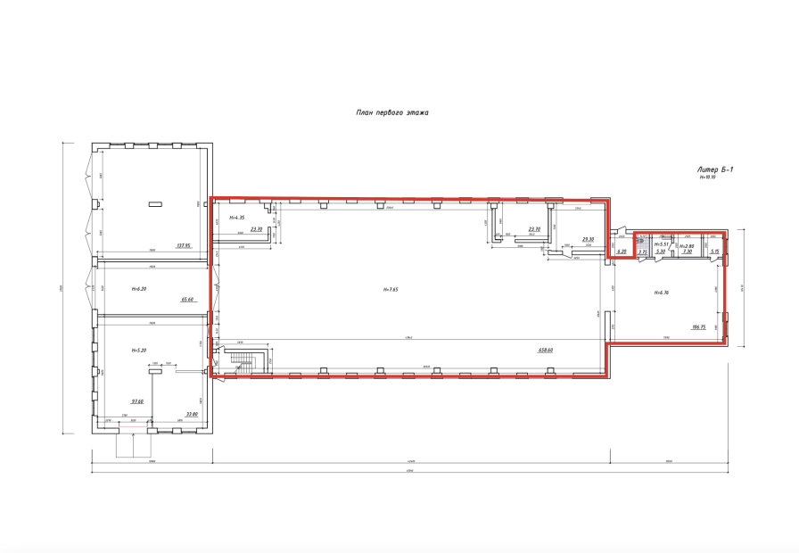
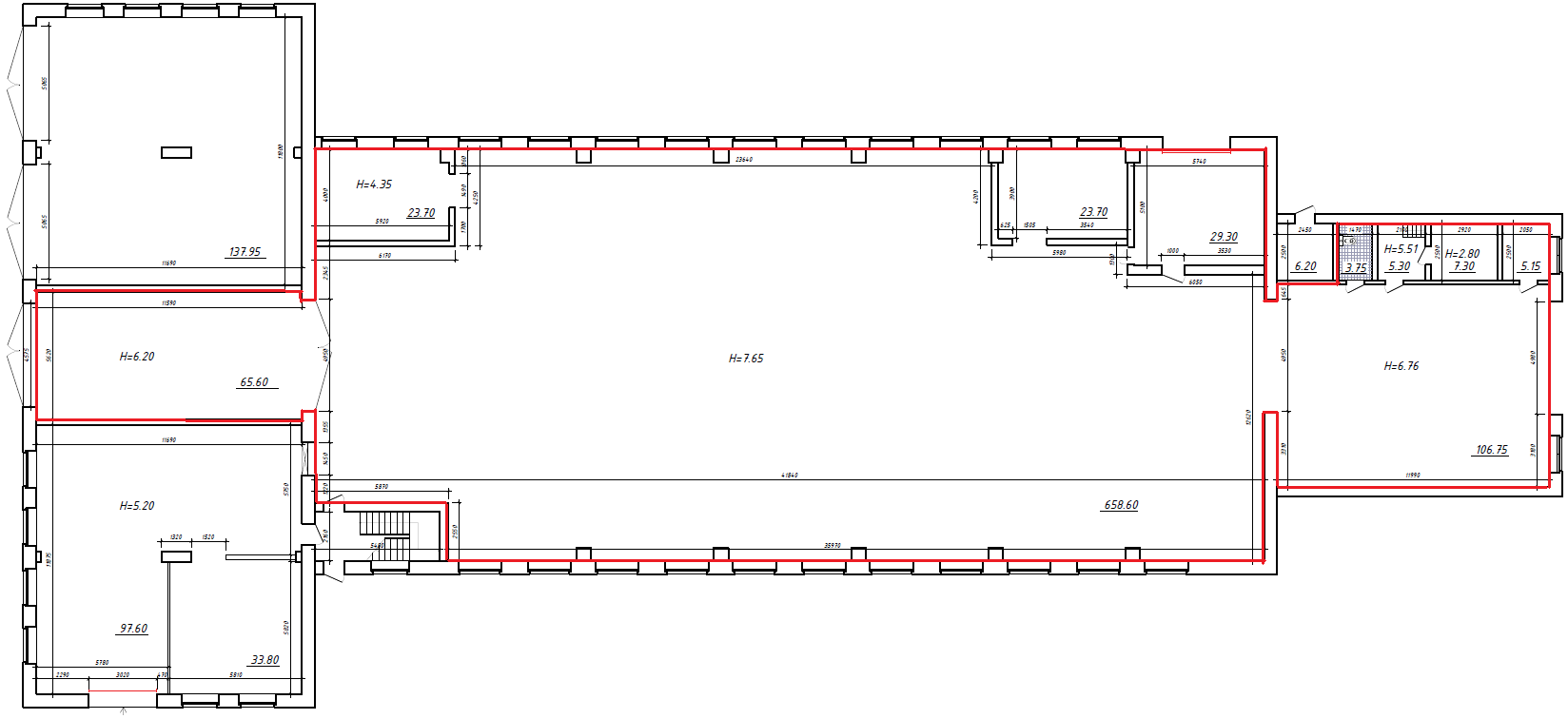
Планировка
Планировка 1004
Описание помещения
Производственно-складское помещение, отапливаемое, 200 кВт.  Часть отдельно стоящего кирпичного здания. 
Отлично подойдет для производственных компаний, логистики, сборочных линий, металлообработки и т.д.
Технические характеристики:

• Высота потолка: 8,8 м (до балки 7 м)
• Нагрузка на пол: до 3 т/м²
• Бетонные полы
• 2 кран-балки по 2,5 т
• Подъемно-секционные ворота (3 шт): 4.9 м × 4.2 м; 4.9 м × 4.2 м; 5 м × 4.3 м, возможен заезд фур

Коммуникации и мощности:
• Электроснабжение: 200 кВт (есть возможность увеличения)
• Водоснабжение и канализация
• Отопление (помещение отапливаемое)

Хозяйственно-бытовая зона:
• раздевалка
• 2 душевые
• санузел

Офис для руководителя производства

Территория и логистика:
• асфальтированная территория
• удобный подъезд для фур
• стоянка
• охрана периметра

В аренду включено:
• НДС
• отопление
• охрана периметра

Звоните — организуем просмотр в удобное время.
Помещение просторное, надежное, безопасное — отличное решение для бизнеса.

Смотреть все
Как добраться