Помещение №642

посёлок Тельмана, 60С Посмотреть на карте

642
642
642
642
642
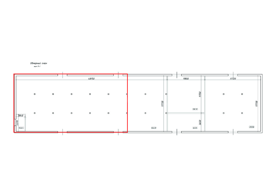
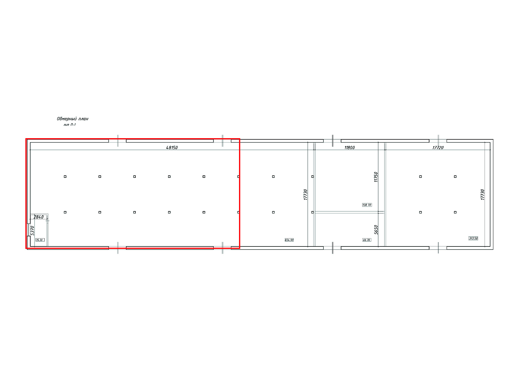
642, планировка
Помещение №642
Промышленное производство, Склад
Сумма в месяц
545 700 ₽/мес
Арендная ставка
850 ₽/м2/мес
Площадь
642 м2
Этаж
1
Включено
Отопление
НДС
Вода
Да
Отапливаемое
Да
Электричество (кВт)
100
Канализация
Да
Кол-во ворот
4
Полы
Бетон
С/У
Да
Нагрузка на пол (тонн/м2)
3
Интернет/Телефония
Да
Вода
Да
Отапливаемое
Да
Электричество (кВт)
100
Канализация
Да
Кол-во ворот
4
Полы
Бетон
С/У
Да
Нагрузка на пол (тонн/м2)
3
Интернет/Телефония
Да

Нужна помощь в подборе?

Оставьте заявку и мы свяжемся с вами

Нажимая кнопку, вы соглашаетесь с  Политикой конфиденциальности

Планировка
Планировка 642
Описание помещения
Предлагаем в аренду помещение на 1 этаже под производство или склад — от собственника!

Основные характеристики:
- 4 ворот с размерами: 3*3 (2 шт.),  2,97*3, 3*2,98
- Высота потолков — 4.80 м  
- Пол бетонный, ровный
- Электрическая мощность — 100 кВт с возможностью увеличения
- Нагрузка на пол 3 т/кв.м.
- Огороженная и освещенная территория  
- Круглосуточная охрана и видеонаблюдение  
- Водоснабжение, есть с/узел
- Возможность заключения долгосрочного договора аренды  
- Въезд на территорию — бесплатный и круглосуточный  
- Подъезд для фур, есть место для парковки автотранспорта  
- Есть прилегающая территория, услуги погрузчика, услуги грузчиков

Что входит в стоимость:
- НДС
- Отопление
- Охрана и видеонаблюдение  

Звоните прямо сейчас, договоримся о просмотре!  
Ваш надежный партнер в аренде производственных и складских помещений!
Смотреть все
Как добраться