Помещение №277

Россия, Колпино, Северная улица, 14 Посмотреть на карте

277
277
277
277
277, планировка
Помещение №277
Промышленное производство
Сумма в месяц
180 050 ₽/мес
Арендная ставка
650 ₽/м2/мес
Площадь
277 м2
Этаж
4
Включено
Отопление
НДС
Вода
Да
Отапливаемое
Да
Электричество (кВт)
150
Канализация
Да
Лифт (грузо-подъемность в тоннах)
2
Кол-во ворот
1
Полы
Антипылевой бетон
Бытовые помещения
Да
С/У
Да
Раздевалки
Да
Нагрузка на пол (тонн/м2)
3
Интернет/Телефония
Да
Вода
Да
Отапливаемое
Да
Электричество (кВт)
150
Канализация
Да
Лифт (грузо-подъемность в тоннах)
2
Кол-во ворот
1
Полы
Антипылевой бетон
Бытовые помещения
Да
С/У
Да
Раздевалки
Да
Нагрузка на пол (тонн/м2)
3
Интернет/Телефония
Да

Нужна помощь в подборе?

Оставьте заявку и мы свяжемся с вами

Нажимая кнопку, вы соглашаетесь с  Политикой конфиденциальности

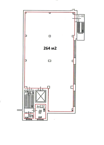
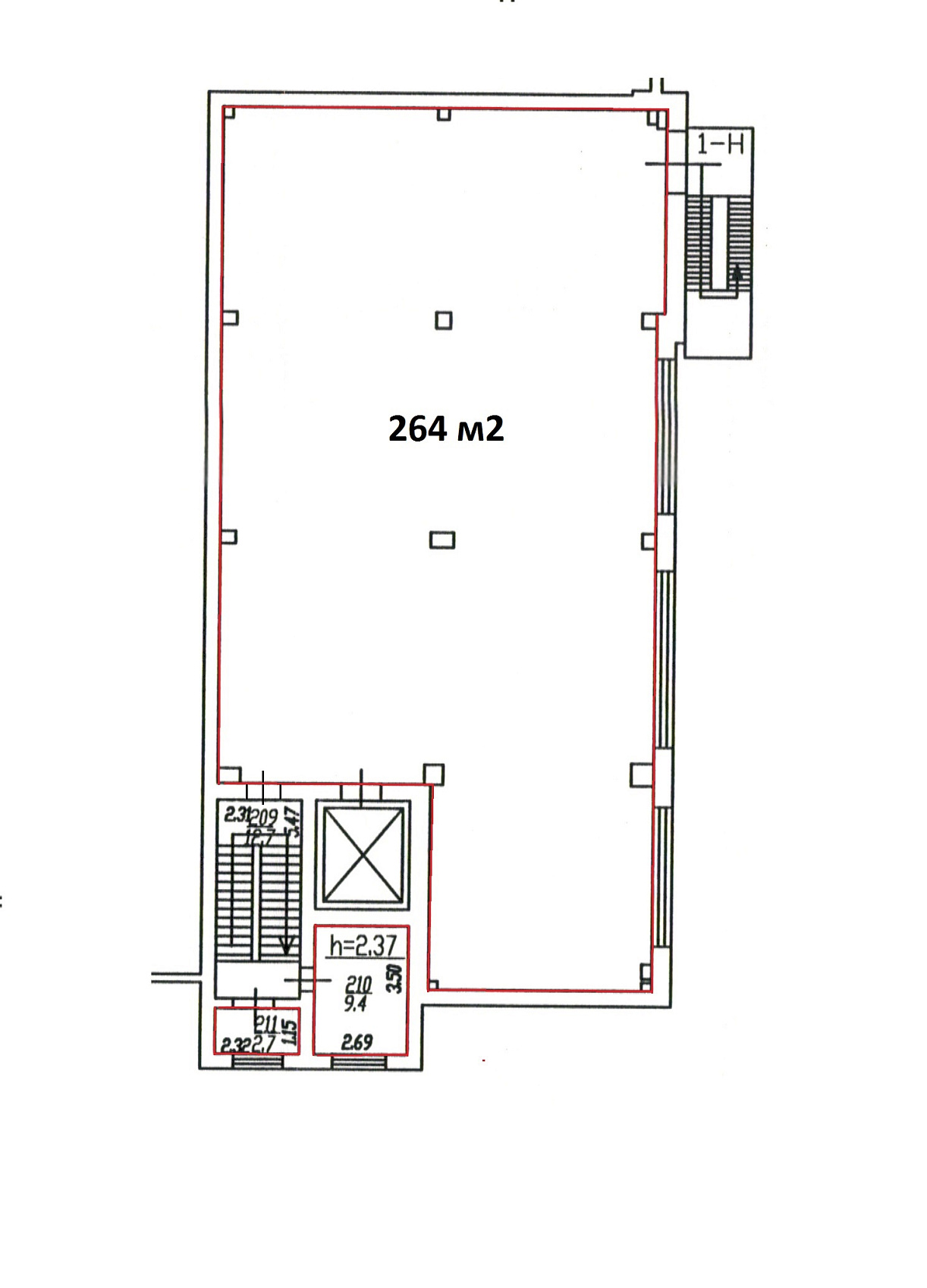
Планировка
Планировка 277
Описание помещения
Помещение под производство или склад от собственника!
Помещение свободного назначения!
НДС и отопление уже включены в ставку!
264 м2 + 12 м2 (подсобое/офисное помещение с сан. узлом)

Основные характеристики:
- Высота потолков —  4 м  
- Ворота 1,8 м х 2 м (1шт.)
- Лифт грузоподъемностью 2 тонны с габаритами 1,7м х 2,5м
- Пол - обеспыленный бетон, ровный
- Электрическая мощность — 150 кВт (с возможностью увеличения)
- Огороженная и освещенная территория  
- Круглосуточная охрана и видеонаблюдение  
- Возможность заключения долгосрочного договора аренды  
- На территории организовано кафе и столовая для сотрудников  
- Въезд на территорию — бесплатный и круглосуточный  
- Подъезд для фур, есть место для парковки автотранспорта  

Удобство расположения, отличная транспортная доступность:
-  Железнодорожная станция «Колпино» — 10 минут пешком  
- Автобусная остановка — 5 минут пешком  

Звоните прямо сейчас и договоритесь о просмотре!  
Ваш успех начинается здесь!



Возможно, вы искали: фулфилмент, распределительный центр, логистический, кросс-докинг, интернет-магазин (хранение и комплектация заказов), оптовый склад, склад маркетплейса, швейное производство, текстильный цех, фасовка и упаковка продукции, пищевое производство, кондитерский цех, производство полуфабрикатов, сборка и комплектация изделий, контрактное производство, мелкосерийное производство, сборочный цех, производство мебели, столярный цех, металлообработка лёгкая, производство пластиковых изделий, печатное производство, типография, рекламно-производственный цех, склад стройматериалов, склад запчастей, сервисный центр, ремонт и обслуживание оборудования, dark store, склад для HoReCa, склад фармацевтической продукции , архив, мастерская, техническая база, пункт выдачи заказов с зоной хранения
Смотреть все
Как добраться