Помещение №338

Россия, Ленинградская область, Поселок Тельмана, 60 Посмотреть на карте

338
338
338
338
338
338
338
338
338, планировка
Помещение №338
Промышленное производство, Склад
Сумма в месяц
321 100 ₽/мес
Арендная ставка
950 ₽/м2/мес
Площадь
338 м2
Этаж
1
Включено
Отопление
НДС
Вода
Да
Отапливаемое
Да
Электричество (кВт)
15
Канализация
Да
Кол-во ворот
2
Полы
concrete
Бытовые помещения
Да
С/У
Да
Раздевалки
Да
Нагрузка на пол (тонн/м2)
2
Интернет/Телефония
Да
В наличии
Вода
Да
Отапливаемое
Да
Электричество (кВт)
15
Канализация
Да
Кол-во ворот
2
Полы
concrete
Бытовые помещения
Да
С/У
Да
Раздевалки
Да
Нагрузка на пол (тонн/м2)
2
Интернет/Телефония
Да
В наличии

Нужна помощь в подборе?

Оставьте заявку и мы свяжемся с вами

Нажимая кнопку, вы соглашаетесь с  Политикой конфиденциальности

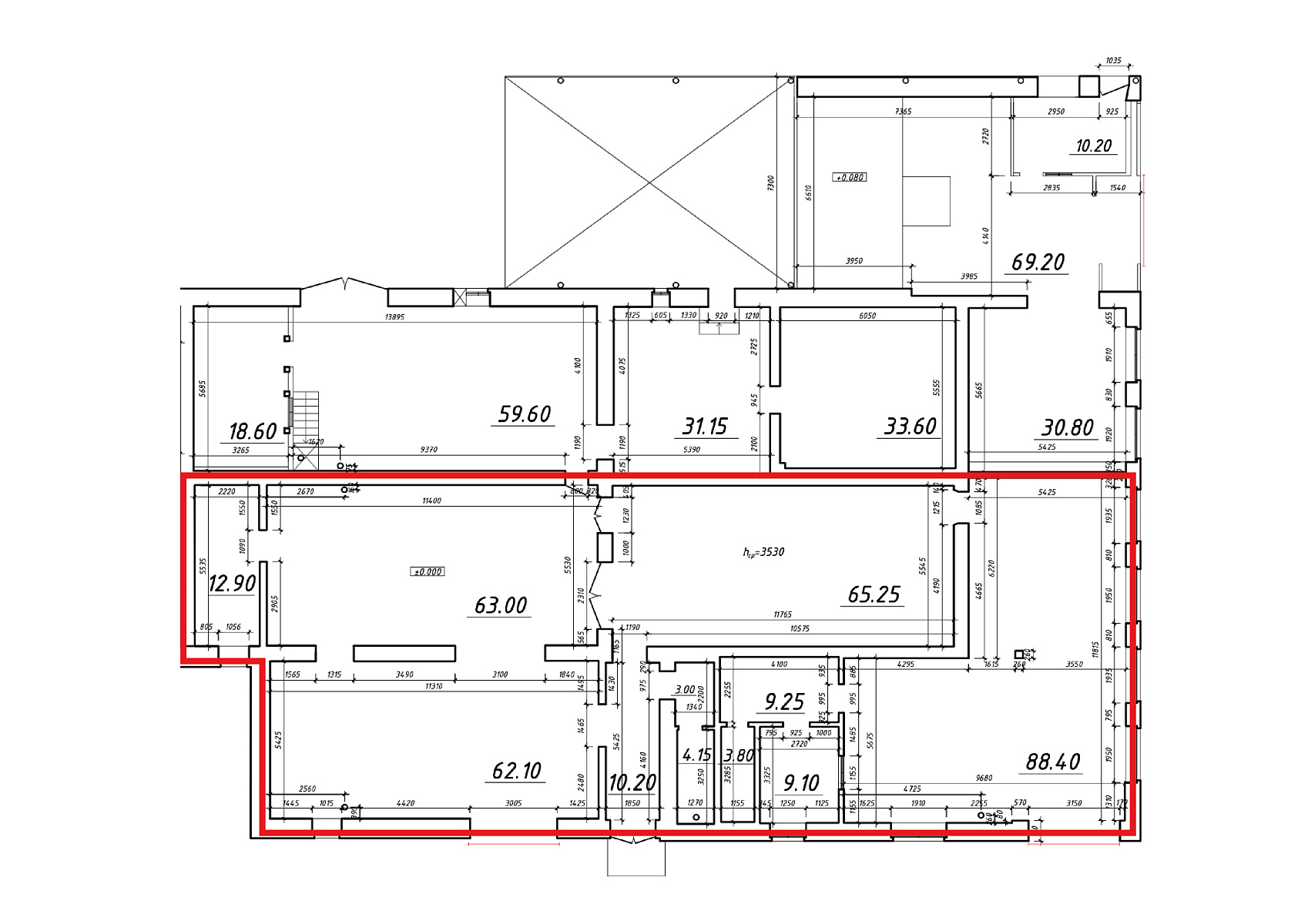
Планировка
Планировка 338
Описание помещения
Помещение 338 м² под производство — от собственника!
В аренду по цене с уже включёнными НДС и отоплением.

Основные характеристики:
- Электрическая мощность — 15 кВт  (с возможность увеличения)
- Ровный, обеспыленный бетонный пол с нагрузкой на пол 2 т/м²
- Высота потолка — 3,5 м  
- Ворота: 3,2м х 3,0м и 2,5м х 3,0м (2 шт.)  
- Есть офисное помещение (может использоваться как раздевалка) и санитарный узел  
- Возможность аренды открытой площадки для хранения или логистики  
- Закрытая, охраняемая территория с видеонаблюдением, просторная парковка
- Работа в режиме 24/7  

Удобная транспортная доступность! 5 минут до Московского шоссе!
До Индустриального Парка регулярно курсирует общественный транспорт от метро Звездная и Рыбацкое!

Звоните прямо сейчас и договоритесь о просмотре!  
Отличное решение для производства, склада или логистического бизнеса.



Смотреть все
Как добраться