Производственно-складское помещение №1071

Россия, Ленинградская область, Поселок Тельмана, 60 Посмотреть на карте

1071
1071
1071
1071
1071
1071
1071
1071
1071
1071
1071
1071, планировка
Производственно-складское помещение №1071
Промышленное производство, Пищевое производство, Склад
Сумма в месяц
589050 ₽/мес
Арендная ставка
550 ₽/м2/мес
Площадь
1071 м2
Этаж
1
Включено
НДС
Электричество (кВт)
150 с возможностью увеличения до 500
Полы
concrete
Пандус
Да
С/У
Да
Нагрузка на пол (тонн/м2)
3
Интернет/Телефония
Да
Электричество (кВт)
150 с возможностью увеличения до 500
Полы
concrete
Пандус
Да
С/У
Да
Нагрузка на пол (тонн/м2)
3
Интернет/Телефония
Да

Нужна помощь в подборе?

Оставьте заявку и мы свяжемся с вами

Нажимая кнопку, вы соглашаетесь с  Политикой конфиденциальности

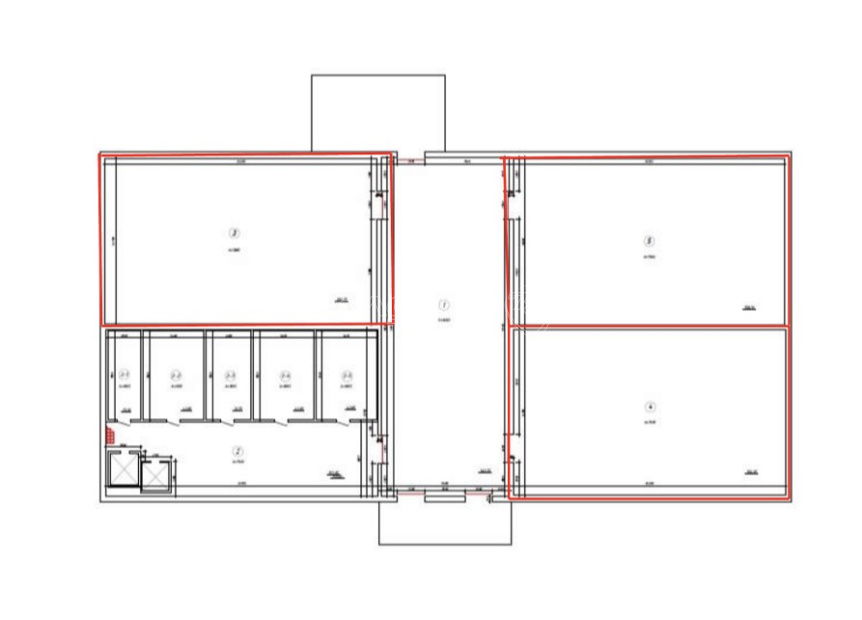
Планировка
Планировка 1071
Описание помещения
Помещение 1071 м²  (3 камеры  по 257 м²) от собственника!

Основные характеристики и преимущества:
- 1 этаж с высотой потолка 7,9 метров  
- Возможность объединить две камеры 
- Мощности электроснабжения — 150 кВт, с возможностью увеличения  до 500 кВт
- Погрузочная эстакада 1,2 м²
- Возможность погрузки/разгрузки с нулевого уровня
- Пол бетонный, ровный (нагрузка на пол до 3 т/м² )
- Ворота — 2,5 м х 3 м  
- Круглосуточный бесплатный доступ 24/7, охрана, КПП, видеонаблюдение.
Стоимость аренды включает НДС (с 1 января 2026 - 22%)
Звоните прямо сейчас!  
Обсудим все детали, покажем объект и ответим на все вопросы!

Смотреть все
Как добраться