Производственно-складское помещение95

Россия, Ленинградская область, Поселок Тельмана, 60 Посмотреть на карте

95
95
95
95
95
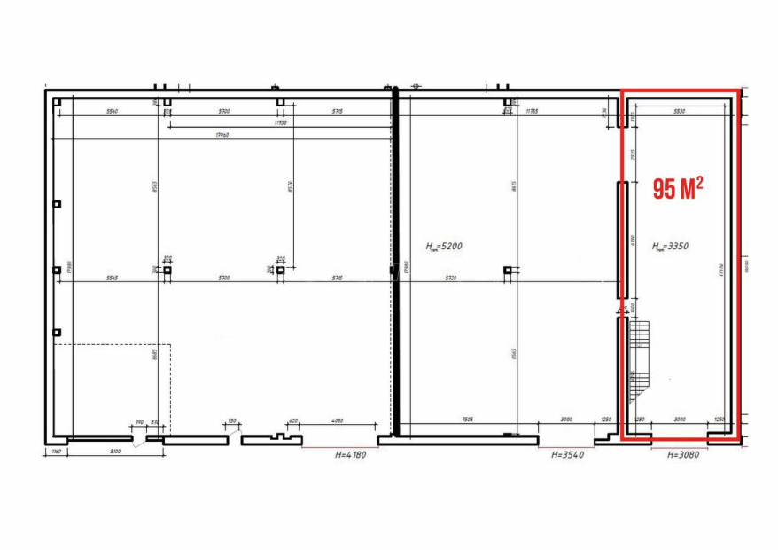
95, планировка
Производственно-складское помещение95
Промышленное производство, Склад, Помещение свободного назначения
Сумма в месяц
90250 ₽/мес
Арендная ставка
950 ₽/м2/мес
Площадь
95 м2
Этаж
1
Включено
Отопление
НДС
Отапливаемое
Да
Электричество (кВт)
300
Кол-во ворот
1
Полы
concrete
Бытовые помещения
Да
С/У
Да
Раздевалки
Да
Нагрузка на пол (тонн/м2)
2
Интернет/Телефония
Да
Отапливаемое
Да
Электричество (кВт)
300
Кол-во ворот
1
Полы
concrete
Бытовые помещения
Да
С/У
Да
Раздевалки
Да
Нагрузка на пол (тонн/м2)
2
Интернет/Телефония
Да

Нужна помощь в подборе?

Оставьте заявку и мы свяжемся с вами

Нажимая кнопку, вы соглашаетесь с  Политикой конфиденциальности

Планировка
Планировка 95
Описание помещения

Помещение под чистое производство или склад или офис — от собственника!


Предлагаем в аренду светлое помещение для производства или склада.

Основные характеристики:
- Включены в стоимость: НДС и отопление
- Отапливаемое помещение
- Водоснабжение и канализация
- Нагрузка на пол — 3 т/м²
- Высота потолка — 3,5 м

- Подъёмно-секционные ворота 3 × 3,5 м 

-Электроснабжение — 200 кВт с возможностью увеличения

       Открытая площадка и парковка

  • Есть возможность арендовать открытую площадку рядом с помещением
  • Парковка для транспорта сотрудников и грузового транспорта

Отличная транспортная доступность

  • 5 минут до Московского шоссе
  • Удобный выезд в сторону Тельмана, Колпино, КАД

Приглашаем вас на просмотр!

Готовы обсудить планировку под ваш технологический процесс, показать помещение и ответить на вопросы.




Смотреть все
Как добраться